top of page
Soil & Stormwater Management
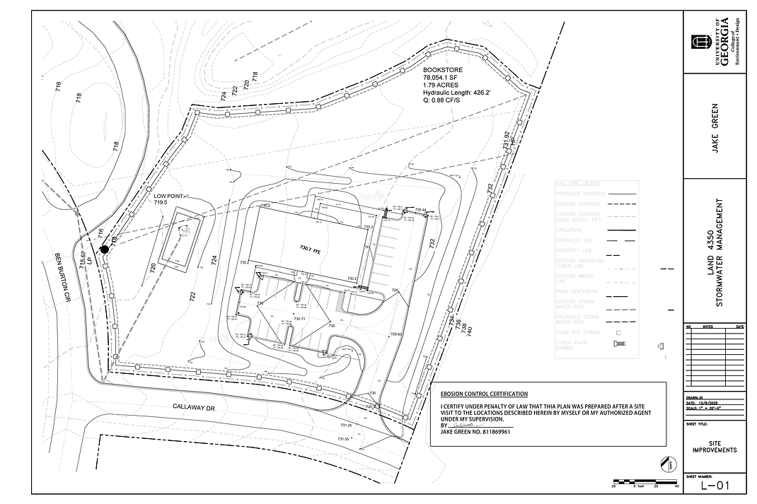
In my Stormwater Management class, we have been studying a site in Athens, GA to analyze how different groundcover types influence surface runoff. As part of this work, we calculated watershed areas and determined runoff volumes based on various storm events. This project helped me develop a stronger understanding of hydrological processes, watershed dynamics, and the importance of integrating stormwater considerations into site design. This project is still a work in progress.
Watershed Delineation

Pre - Development Calculations

Post-Development Site Calculations

Preliminary Site Grading Plan

Final Site Grading Composition








bottom of page